Подключение 15 КВт
С 1 июля 2020 года не нужно самостоятельно выполнять подключение дома. Все работы выполняет электросетевая организация
Как было раньше:
Подольские специалисты с группой допуска до 1000 Вольт выполнят техусловия по подключению Вашего дома к электросетям.
Работы выполняются за один день. Материалы приобретаются нами самостоятельно, или в Вашем присутствии.
Опыт работы в данной области - 15 лет. Гарантируем принятие проделанных работ инспекторами Энергосбыта.
Предоставляем договор и гарантию.
Комплекс мероприятий для присоединения к электрическим сетям:
- -Получить технические условия в электросетях. Это можно сделать лично, или через интернет
- -Выполнить подключение дома к электричеству согласно техусловиям
- -Вызвать инспектора для проверки выполненных работ и опечатывания автоматов и счетчика
Если Вы хотите получить технические условия в Подольске лично, обратитесь по адресу:
Октябрьский Проспект дом 6.Время работы 8:00-17:00, выходные суббота и воскресенье. Телефон для справок - 8(4967) 69-98-75
В полученных технических условиях указывается номер опоры (столба)для присоединения и установки на нем электрощита, сроки выполнения подключения и общая справочная информация. В этой документации вы не найдете ни одного слова о том как выполнить работы, только ссылки на библию электрика - ПУЭ.
Соответственно у любого человека возникает два вопроса:
- Как выполнить технические условия по подключению электричества к дому?
- Кто может выполнять работы по технологическому подсоединению к электросетям?
Выполнение технических условий для подключения дома
Присоединение электричества к участку можно выполнить двумя способами :
- Непосредственно установить электрощит на столб
- С помощью трубостойки
Установка электрощита на столб
Если столб указанный в документации находится недалеко от дома, на нем не установлено уже множество соседских электрощитов, рекомендую Вам остановиться на первом способе.
Для этого приобретается металлический щит с защитой от влаги и пыли по категории IP 55.
Внутри него устанавливается электросчетчик и два автомата. Первый автомат стоит перед счетчиком (в специальном пластиковом боксе для опечатывания), второй автомат располагается после электросчетчика.
Электрощит крепится на столб с помощью специальных кронштейнов. Кстати, подробное описание процесса работ с фотографиями находится в конце подключение участка .
Установка электрощита на трубостойку
Материалом для трубостойки служит квадратная металлическая труба, длиной 4,5 метра.
Полтора метра заглубляется под землю, остальная часть выполняет роль столба для установки электрощита.
Трубу желательно покрасить, иначе ее покроет унылая ржавчина.
Трубостойку следует применять в проблемных случаях. Например, когда на столбе расположено много соседских электрощитов, или же, когда установка щита затруднена иными условиями.
Расстояние от трубостойки до столба - около метра. Нормируются и размеры трубы, длина стенки должна быть не менее 40 мм.
Стоимость подключения
Однофазное подключение:
- Стоимость материалов - 9000 рублей
- Стоимость работ - 8000 рублей
Трехфазное подключение:
- Стоимость материалов - 10000 рублей
- Стоимость работ - 9000 рублей
Наш коллектив выполняет подключения домов и участков в Подольске и на юге Московской области.
Все работы выполняются качественно, за один день.
Ваша задача - получить технические условия, по интернету или лично, позвонить нам для выполнения технических условий. После окончания электромонтажа, сделать заявку в электросети для опечатывания счетчика.
Перед началом работ необходимо осмотреть участок для уточнения количества материалов и способов выполнения подсоединения Вашего дома к электричеству.
Все материалы мы можем приобрести самостоятельно, либо вместе с Вами, в одном из лучших магазинов электрики в Подольске.
Номер телефона для связи с нами и бесплатной консультации - 8-985-333-19-14
Рекомендуемые электросчетчики для установки в щит
Для трехфазного подключения рекомендую приобретать счетчики Меркурий.
Меркурий 231 AM-01 5(60)A/380В. Простейший и недорогой счетчик для однотарифного учета.
Меркурий 231 AT-01 I 5(60)A/380В. Простейший и недорогой счетчик для многотарифного учета.
Эти счетчики являются надежными приборами учета. Их плюсы в том, что они рекомендованы к установке электросетями и по сути, самые простые и недорогие приборы учета из существующих на рынке.
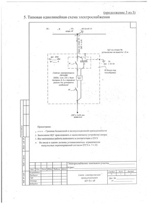
Однолинейная схема электроснабжения
В последнее время работники электросетей требуют с потребителей однолинейную схему.
Думаю, это им нужно для создания еще большей неразберихи и бумажной волокиты.
Все заказчики, обратившиеся к нам в этом году были в большой растерянности от этого требования. Понятно, что человек, далекий от электричества, услышав понятие - однолинейная схема, может представить все что угодно.
Удивительно и то, что схема эта однотипная, практически одинаковая для всех. Отличается лишь заполнением пунктов (например таких как адрес и номер опоры, 220 или 380 Вольт) и небольшими деталями.
Однолинейная схема, это чертеж, состоящий из условного обозначения электросчетчика, автоматических выключателей и кабельных линий. Схема эта однотипная для всех исполнителей.
Привожу на этой странице типовую однолинейную схему электроснабжения. Вы можете скачать ее и заполнить. Этот вариант вполне устроит бюрократов от электросетей.
Прокладка кабеля в траншее
Подключение дома можно выполнить не только с помощью воздушных электрических линий, но и с помощью кабеля, проложенного под землей в траншее.
Этот способ более практичен. Кабель, проложенный под землей не виден, не бросается так в глаза, как воздушная линия.
Создается впечатление, что кабель, проложенный подземно, менее надежен, чем провода, протянутые от столба к дому.
Но это не так. Если выполнить все требования Правил Устройств Электроустановок (ПУЭ), то подземный ввод в дом окажется более надежным, чем воздушная подводка проводов к зданию.
Для выполнения требований ПУЭ по прокладке кабеля в траншее необходимо выполнить ряд условий: Глубина траншеи должна быть не менее 70 сантиметров. Лучше около 80 и остаток подсыпать песочком для избежания деформаций кабеля при движениях грунта. Именно такая глубина прокладки кабеля под землей регламентируется правилами.
То есть грубым нарушением будет просто сделать канаву глубиной в штык лопаты с прикапыванием кабеля. Такое залегание кабеля будет проходить в глубине промерзания грунта и он будет подвержен сезонной деформации почвы при замерзании и оттайке поверхностного слоя почвы.
Обязательно должна присутствовать присыпка песком дна траншеи слоем около 10 см.
Далее на слой песка укладывается электрический кабель.
Требования к кабелю, прокладываемому под землей.Кабель обязательно должен быть бронированным.
Маркировка бронированного кабеля:
АВББШВ - бронированный кабель с алюминиевыми жилами.
ВББШВ - бронированный кабель с медными жилами.
Какой кабель выбрать для прокладки под землей, медный или алюминиевый?
Провода с медными жилами проводят больший ток, чем провода с алюминиевыми жилами, при равном сечении жил. Но у алюминиевого кабеля есть большое преимущество перед медным - это гораздо меньшая стоимость.
К примеру, кабель ВББШВ 4х10 (четыре жилы сечением 10мм2 каждая ) стоит на момент написания статьи около 550 рублей за один метр.
Стоимость аналогичного ему по пропускной способности электрического тока алюминиевого кабеля АВББШВ 4х16 равна 180 рублей за метр.
Эти кабели взаимозаменяемы. Алюминий так же хорошо проводит электрический ток, как и медный провод и так же долговечен. Просто нужно выбрать сечение жил на один порядок выше. Таким образом, при подключении бытовых построек и незначительных нагрузках, в пределах 15- 30 КВт, целесообразнее использовать алюминиевый бронированный кабель.
Кабель не нужно сразу полностью засыпать землей. Траншею следует присыпать на две трети, затем по всей длинне земляных работ разматывается сигнальная лента и уже после этого кабель полностью засыпается землей. Сигнальная лента нужна для предотвращения повреждений кабеля при земляных работах в будущем.
Стоимость прокладки кабеля в траншее
Стоимость изготовления одного метра траншеи для прокладки кабеля под землей по всем требованиям ГОСТ равна 500 рублей за метр погонный.
Стоимость прокладки кабеля в траншее с сечением жил до 25 мм2 равна 200 рублей за метр погонный.
К примеру, нашим коллективом был выполнен комплекс работ:
- Рытье траншеи длиной 50 м.
- Подсыпка дна траншеи песком
- Прокладка кабеля АВББшв длиной 55 метров
- Прокладка сигнальной ленты
- Сверление отверстия сквозь фундаментный блок. Диаметр отверстия 32мм
- Присоединение подземного кабеля АВББШВ 4х10 к электрощиту на столбе
- Установка электрощита на 36 модулей в здании гаража. В щите установлен вводный трехполюсный автомат и три розетки
- Монтаж заземления внутри траншеи
- Стоимость проделанного комплекса работ составила 50 000 рублей
- Стоимость материалов (кабель 55 метров, электрощит, автоматы, материал для заземления)составила 18 000 рублей
От теоретической части плавно переходим к практической. Привожу обещанный рассказ об одном из подключений в этом году.
Подключение электричества к участку
Одним прекрасным солнечным днем высадили меня посреди болота. Поставленная задача - установить щит на столбе, с дальнейшей возможностью подключения дома. Подключение 15 КВт.
Собственно, дома как такового пока нет, поэтому в электрощите необходимо установить розетку для строителей.
Все необходимые материалы были закуплены заранее, работа знакомая. Неожиданностей в таком деле быть не должно. Не оказалось с собой лишь резиновых сапог. О луже такого масштаба никто не предупреждал.
Пришлось подразобрать разрушенный дом на участке. Пригодилась старая деревянная дверь. На ней удалось достаточно комфортно расположиться.
Первым делом приступаю к сборке электрощита. Устанавливаю электросчетчик так, чтобы в окошко было видно цифровое табло. Инспектор, не открывая дверцы, должен снимать показания.Далее устанавливаю два автомата АВВ на 25 ампер. Один перед счетчиком, другой после.
Автомат перед электросчетчиком устанавливается в пластиковый бокс для опечатывания.
Щит готов к установке на столб.
Погода прекрасная, это завтра уже пойдут дожди, а сейчас, несмотря на унылый серый пейзаж, пахнет весной.
Познакомился на краю лужи с замечательным соседским мальчиком Димой. Дима нашел на заброшенном участке противогаз и ходил в нем. Замечательный мальчик. Не играет в компьютер, гуляет на улице, коллекционирует монеты. Показал мне коллекцию монет и, в доказательство нашей дружбы, подарил две монетки.
Итак, щит установлен на столб, остались верхолазные работы.
Напомню, что мы делаем подключение загородного дома по всем правилам электросетей.
Значит не будем по колхозному крепить провода в гофре по столбу, прикручивая их обрезками разноцветных проводов.
Провода пойдут в жесткой пластиковой трубе вдоль столба. Труба будет закреплена на специальные кронштейны.
Первый кронштейн я установил около электрощита, затем верхний и два между ними. Эти работы ведутся с приставной трех коленной лестницы.
Наверху обязательно пристегнуться монтажным поясом!!!
Лестница достаточно легкая, с ней может справиться один человек. Детали кронштейнов уже отрезаны в размер, остается лишь скрутить его шпильками и гайками.
Нижний и верхний кронштейны ставятся легко. Для установки средних кронштейнов приходится опускать лестницу. Ее лучше ставить так, чтобы выступающая часть кронштейнов не упиралась в лестницу.
На фото лестница установлена сбоку. Позже я установил ее позади столба. Самое оптимальное место для монтажа.
После установки креплений устанавливается труба. Пластиковая труба зажимается разъемными водопроводными клипсами.
Диаметр трубы 32 мм, клипсы берутся на 25 - 32 мм. Зажиматься должно крепко, иначе труба будет выскальзывать при затяжке в нее провода.
Затем сверху пропихивается провод.
Его можно также протягивать или протаскивать. Я предпочитаю пропихивать.
Вот так, красивой дугой, СИП 4х16 заводится в электрощит. Для перехода между жесткой трубой и щитом используется гибкая гофра.
Осталось присоединить провода на воздушной линии и внизу, в электрощите.
Для присоединения наверху использую "орехи" Niled, предназначенные для соединения проводов СИП. Сжимы удобно закручивать ключом-трещоткой на 13. Затягивать гайку нужно до ее отрыва. Это означает, что создано нужное усилие для надежного контакта.
Присоединение начинаем с нулевого провода. Наверху он является несущим, к нему присоединено крепление от столба. Это хорошо видно на фото.
Перед подсоединением наверху присоединяю провода внизу. Неудобно работать с проводами под напряжением, периодически бьет током.
Вот и все. Подключение электричества на участке выполнено.
Осталось проверить напряжение внизу. Напряжение в норме.
Издалека заметно, что трубы искривились на соединении. Считаю это недостатком и своим косяком. Все должно быть ровно - параллельно. В оправдание скажу, что муфты, соединяющие трубы, надевались не жестко и фиксация получилась слабая. Пришлось подматывать на местах соединений изолентой.
О чем здесь можно выругаться порядочному электрику...?
Не находится поводов для бранных слов. Ругаться на себя, что нет в багажнике резиновых сапог? Всего необходимого не поместишь в багажник.
Поругаюсь на производителей муфт, соединяющих пластиковые трубы. Невозможно делать муфты, не обеспечивающего жесткого соединения. Вот узнаю производителя и выругаюсь на все просторы интернета.
Если Вас интересуют такие мелочи, как стоимость работ по подключению, посмотрите здесь Подключение.

























